GUIDE DE PRÉPARATION À L’INSTALLATION

Nous vous remercions de votre confiance pour l’investissement de votre nouvelle machine-outil. Vous trouverez ci-dessous les préconisations pour la préparation à l’arrivée de cette dernière. Pour toutes questions complémentaires, n’hésitez pas à nous contacter.
02 51 34 12 12
Sommaire :
1. Caractéristiques
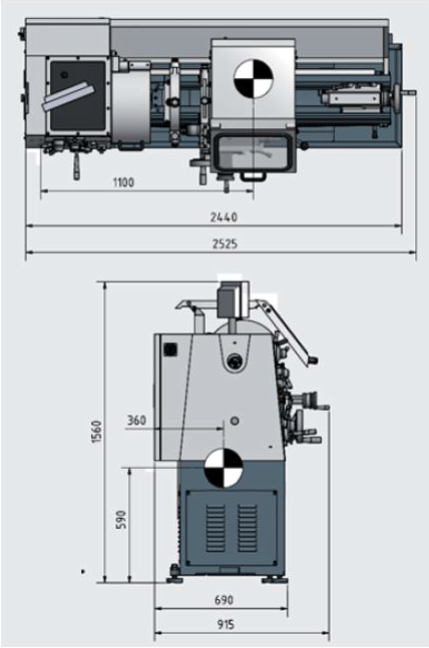
Poids de la machine : 1550 kg.

2. Manutention et transport

Matériel nécessaire au levage :
- 4 sangles de 2 tonnes longueur 4 mètres (1tour mort sur chaque barre côté mandrin)
- 2 barres de 700 mm et diamètre 30 mm
Être vigilant lors de la tension des sangles à ne pas être en contact avec les règles de visues, les leviers, ou tout autres pièces.



3. Positionnement
Respecter une distance minimale de 800 mm à l'arrière de la machine et 1 m sur les côtés.
La zone de travail à l'avant de la machine doit être dégagée.
Installer la machine sur une surface suffisamment plane de sorte d'avoir la meilleure stabilité possible.
La machine est fournie avec 6 pieds réglables.
4. Alimentation
Tension : 400 VAC.
Puissance du moteur de broche : 5.5 kW
Raccordement : sur un coffret électrique équipé d’une protection différentielle en amont de 300 mA, courbe D, 3 phases + terre.
Câble : la section du câble est fonction de la longueur de ce dernier et de la puissance de la machine. Votre électricien pourra déterminer celui-ci : Section minimale : 5G2.5 mm².
Le raccordement électrique se fait en ouvrant le couvercle du sectionneur général de la machine, derrière le banc de la machine. Connecter les bornes R, S et T à la source d'alimentation. La machine doit être reliée à la terre.
La machine est fournie avec un câble d'alimentation de 2 m section 5G2.5 mm² muni d'une prise 5 pôles 16 A.
Pneumatique : cette machine ne requiert pas d’alimentation en air (sauf si un système de micro-lubrification est utilisé).

